Dom Z225 D | 96m2
Kompaktowy dom z poddaszem użytkowym o funkcjonalnym wnętrzu.
DOMY PIĘTROWE

Kompaktowy dom z poddaszem użytkowym o funkcjonalnym wnętrzu.
96 m².
Z225 d


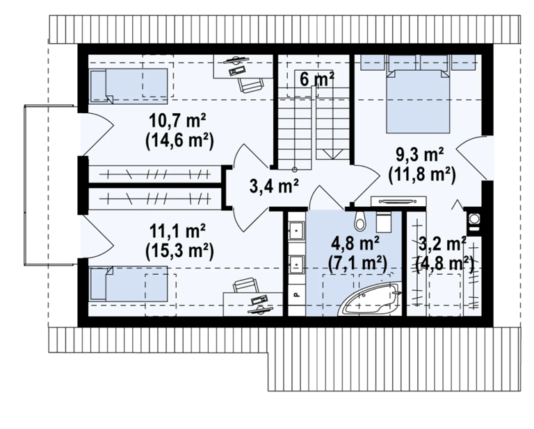
Z225D to nowoczesny, piętrowy dom drewniany o powierzchni 96 m². Jego kompaktowa, ale funkcjonalna przestrzeń obejmuje dwie sypialnie, co czyni go idealnym rozwiązaniem dla małej rodziny lub jako domek letniskowy. Charakterystyczna bryła budynku, z dużymi przeszkleniami i minimalistycznym designem, łączy estetykę z komfortem użytkowania.
Powierzchnia użytkowa: 96m2
Ilośc sypialni: 3
Ilośc łazienek: 2
Jeśli chcesz wybudować z nami ten projekt.
Galeria:




Projekt:




Nasi klienci oglądali również:
