Dom Z210 D | 89m2
Wersja projektu Z210 z powiększoną kotłownią.
DOMY PIĘTROWE

Wersja projektu Z210 z powiększoną kotłownią..
89 m².
Z210 d


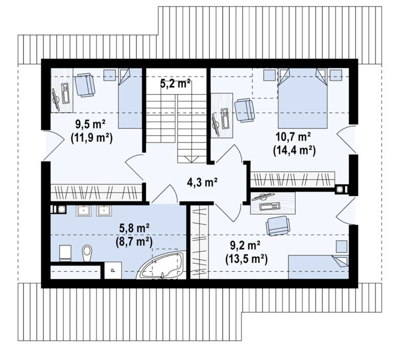
Z210 D to nowoczesny, piętrowy dom drewniany o powierzchni 89 m². Jego kompaktowa, ale funkcjonalna przestrzeń obejmuje dwie sypialnie, co czyni go idealnym rozwiązaniem dla małej rodziny lub jako domek letniskowy. Charakterystyczna bryła budynku, z dużymi przeszkleniami i minimalistycznym designem, łączy estetykę z komfortem użytkowania.
Powierzchnia użytkowa: 89m2
Ilośc sypialni: 3
Ilośc łazienek: 2
Jeśli chcesz wybudować z nami ten projekt.
Galeria:




Projekt:




Nasi klienci oglądali również:
